こんにちは、和歌山テナントナビの藤林です。
大浦街道沿い和歌山市砂山南で約740坪の貸土地(現況:倉庫・事務所・寮)と
砂山南の物件は元パチンコ店で、現況は1階が店舗から倉庫に変わっており、2階 事務所、3階 寮となっています。
現況外観
土地図面

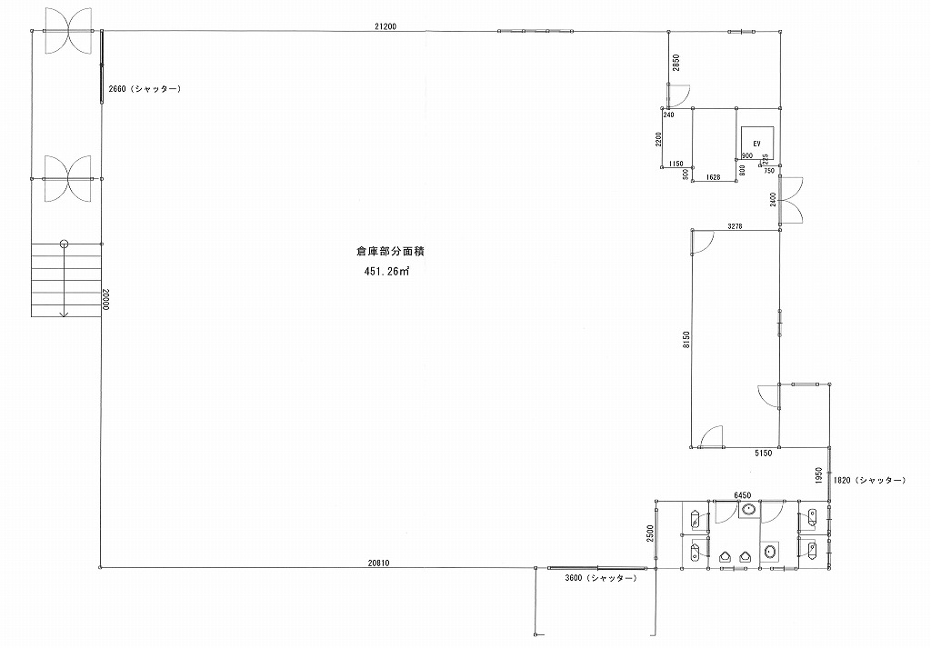
現況1階の図面

海南市船尾の物件は、建築予定の物件となりますので、仕様の相談等可能です。
どちらも当社貸主につき仲介手数料は不要の物件です!
お問い合わせは
0120-355-800
和歌山テナントナビ運営 株式会社フジシマ産業までお電話下さい
■□■□■□■□■□■□■□■□■□■□■□■□■□■□■□■□■□■□■□■□■□■□■□■□■□■□
株式会社フジシマ産業
藤林正樹
〒640-8112 和歌山市南材木丁二丁目10
TEL:073-436-5800 FAX:073-436-3070
受付時間 9:00~18:00 / 定休日 日曜、祝日、第1・3・5土曜
和歌山テナントナビがあなたに提供する3つのサービス
1.仲介手数料0円
2.新規出店支援最大100万円
3.あなたの希望に応じて最大3億円まで
株式会社フジシマ産業運営 不動産売買専門
■□■□■□■□■□■□■□■□■□■□■□■□■□■□■□■□■□■□■□■□■□■□■□■□■□■□



