管理物件 - スカイツリー見てきました!【岩出市中島でカフェ居抜き物件出ました】

スカイツリー見てきました!

 

こんばんは、和歌山テナントナビの藤林です。

 

 

いや~スカイツリーきれいですねぇ~(ろくに見えてないけど)

 

 

近くからの写真??

 

 

ありません。ここからしか見てないです(笑)

 

 

人生初のもんじゃ焼き。

 

 

思ったよりビチャビチャではなく普通でした。おいしかったです。

 

 

築地でお寿司屋さんからつまみ出されていたニャンコ(笑)

 

 

いいもの食べてるようでふっくら&素敵な毛並みでした♪

 

 

ここからはデッカイ建物鑑賞会~!

三越

 

朝日新聞

 

リコー(左側)&変わった建物(真ん中)

 

 

真ん中の建物は有名な建物で賃貸物件らしいです。

 

 

電通

 

日本テレビ

 

 

都会の建物はスケールが違いますね~♪

 

 

さて、本題(?)

 

 

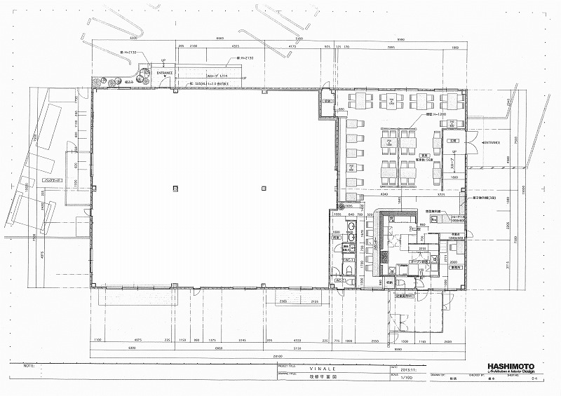
岩出市中島でカフェの居抜き物件が出ました。

 

 

面積は約45坪、賃料は月額432,000円(税8%込)です。

 

上記図面で右側の部分です。

 

 

左側の部分はスケルトンで約70~80坪、324,000円です。

 

 

 

駐車スペースは共用で100台以上!

 

外観

 

[googlemap lat=”34.26252574245158″ lng=”135.28798878192902″ align=”undefined” width=”660px” height=”500″ zoom=”17″ type=”G_NORMAL_MAP”]34.262526,135.287989[/googlemap]

地図

 

保証金、礼金は各々賃料の2ヶ月分となります。

 

 

例によって例の如く、仲介手数料は0円です!

 

 

明日、現地と図面照らし合わせて、写真もとってきまーす!

 

 

ではまた!

 

 

 

■□■□■□■□■□■□■□■□■□■□■□■□■□■□■□■□■□■□■□■□■□■□■□■□■□■□

 

 

株式会社フジシマ産業

 

藤林正樹

 

〒640-8112 和歌山市南材木丁二丁目10
TEL:073-436-5800 FAX:073-436-3070
受付時間 9:00~18:00 / 定休日 日曜、祝日、第1・3・5土曜

 

藤林正樹のブログ

 

和歌山テナントナビがあなたに提供する3つのサービス
1.仲介手数料0円
2.新規出店支援最大100万円
3.あなたの希望に応じて最大3億円まで

 

株式会社フジシマ産業運営 不動産売買専門

和歌山で評判の不動産相談センター

 

株式会社フジシマ産業 公式facebookページ

https://www.facebook.com/fujishimasangyou/


■□■□■□■□■□■□■□■□■□■□■□■□■□■□■□■□■□■□■□■□■□■□■□■□■□■□