(昨日の続き・・・)
有田市の土地に看板をつけ直している途中・・・
電動工具のバッテリー切れた・・・
最後の1本なのにこの状態・・・
(1cm位しか入ってません)
手が痛くなるのは覚悟で全力で締め込み・・・!
結果
あと2cm位は私の力ではどうやっても無理・・・
ゴリラでも連れてこないと無理です。
こんにちは、和歌山テナントナ簿の藤林です。
完成した写真張り忘れてました!
有田市宮崎町、国道42号線沿いの貸土地(売却も可)
この前の台風で倒れたらしいくつけ直しました!
物件種目:貸土地
所 在 地:有田市宮崎町235-1
面 積:665㎡(201.16坪)
賃 料:月額250,000円
保 証 金:750,000円
礼 金:750,000円
用途地域:準工業地域
地 目:田(農地転用を要する)
接 道:北側13.8m 国道42号線に面する、東側47.22m 有田市道に面する
取引態様:仲介
斜め前のパチンコ店が緑色看板の某スーパーになるらしいので、スーパー近くで出店検討している方にお勧めかも?
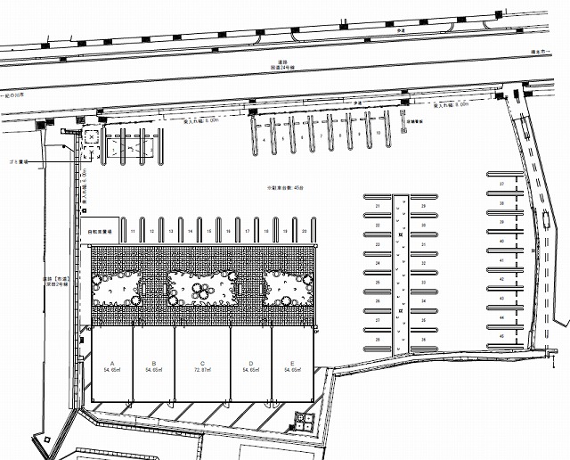
そして図面が微妙に変わり続けているグリーンプラザ粉河の最新図面・・・
どこが変わったかはもはや間違い探しのレベルです(笑)
駐輪場スペース等々で駐車場は48台→45台に減りましたm(_ _)m
A・B・D・E号室は引き続き募集中となっております
お問い合わせは、
通話料無料0120-355-800
和歌山テナントナビ運営 株式会社フジシマ産業までお電話下さいm(_ _)m
■□■□■□■□■□■□■□■□■□■□■□■□■□■□■□■□■□■□■□■□■□■□■□■□■□■□
株式会社フジシマ産業
藤林正樹
〒640-8112 和歌山市南材木丁二丁目10
TEL:073-436-5800 FAX:073-436-3070
受付時間 9:00~18:00 / 定休日 日曜、祝日、第1・3・5土曜
和歌山テナントナビがあなたに提供する3つのサービス
1.仲介手数料0円
2.新規出店支援最大100万円
3.あなたの希望に応じて最大3億円まで
株式会社フジシマ産業運営 不動産売買専門
株式会社フジシマ産業運営 不動産賃貸専門
和歌山テナントナビ
和歌山お部屋探しナビ
■□■□■□■□■□■□■□■□■□■□■□■□■□■□■□■□■□■□■□■□■□■□■□■□■□■□





