管理物件 - 和歌山市広瀬通丁、もうすぐお花見の季節~♪【広瀬小学校区で3LDKのお部屋あります】

「黄砂と花粉とpm2.5に晒されながら花見しよう」

 

 

と友人に花見の計画を持ちかけたら

 

 

「そのくだりやと、やりたくない」

 

 

と断られた和歌山テナントナビの藤林です、こんにちは。

 

 

でも事実です。現実を直視したまえ・・・

 

 

お花見シーズンには花粉・黄砂は無くなってますかねぇ?

 

 

今日は鼻の奥が痒くて痒くて・・・耐えきれずにマスクして不審人物化してます・・・

 

 

息したら眼鏡が曇る・・・コーヒー飲もうとしたらマスクの上から飲みそうになる・・・

 

 

求む!花粉症の特効薬!

 

 

~~~~~~~~~~~~~~~~~~

【和歌山お部屋探しナビの新着情報】

 

 

和歌山市広瀬通丁二丁目12-1 広瀬ビル3F

 

 

で空室が出ました。3階なのに101号室の超紛らわしいお部屋・・・

 

 

これを機に号室変更しましょうかね?(汗)


所在地 和歌山市広瀬通丁二丁目12-1 広瀬ビル3F
賃料 70,000円
共益費 3,000円
礼金 2ヶ月分(140,000円)
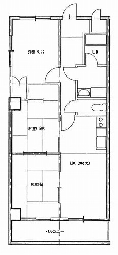
面積 68.04㎡
間取り 3LDK
駐車場

1台10,500円

縦列2台15,000円も有

備考

3階南向きで日当たり良好!

キッチン、洗面台入れ替え&壁紙、床張り替えで
フルリフォーム予定の為、4月中旬位に入居可能予定です。

当社貸主につき仲介手数料不要!

ヒラマツ、エバグリーン、コーナンまで
徒歩約5分で買い物に便利♪

広瀬小学校区

お問い合わせは、

通話料無料0120-355-800

和歌山お部屋探しナビ運営 株式会社フジシマ産業

担当 松本、川端まで

「広瀬ビル3階のお部屋の件で」とお伝え頂くと話がスムーズに進むと思います!

 

 

■□■□■□■□■□■□■□■□■□■□■□■□■□■□■□■□■□■□■□■□■□■□■□■□■□■□■□■□■□■□■□

株式会社フジシマ産業

 

藤林正樹

 

〒640-8112 和歌山市南材木丁二丁目10
TEL:073-436-5800 FAX:073-436-3070
受付時間 9:00~18:00 / 定休日 日曜、祝日、第1・3・5土曜

 

藤林正樹のブログ

 

和歌山テナントナビがあなたに提供する3つのサービス
1.仲介手数料0円
2.新規出店支援最大100万円
3.あなたの希望に応じて最大3億円まで

 

株式会社フジシマ産業運営 不動産売買専門

和歌山で評判の不動産相談センター

 

株式会社フジシマ産業運営 不動産賃貸専門
和歌山テナントナビ
和歌山お部屋探しナビ

 

■□■□■□■□■□■□■□■□■□■□■□■□■□■□■□■□■□■□■□■□■□■□■□■□■□■□■□■□■□■□■□