管理物件 - 久しぶりに新(?)物件情報~~!和歌山市吹屋町4丁目、デイサービス向きテナントに空きが出ます!【デイサービス用テナントをお探しの方必見?】

こんばんは、和歌山テナントナビの藤林です。

 

 

久しぶりの新物件情報です!

 

 

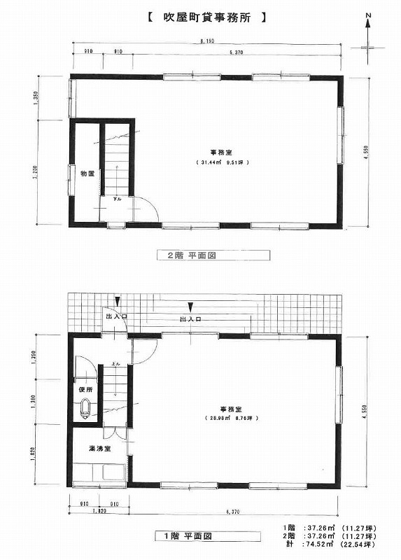
和歌山市吹屋町4丁目、新南小学校の南側にある、吹屋町貸事務所が来年1月末で空予定となっております。

 

 

現在、デイサービスとしてお借り頂いており、介護用(?)のお風呂も増築された部分にあります。

 

 

写真前に撮ったのあったはずなのに見当たらないんですよねぇ・・・

 

 

1階の左上の部分に扉があり、増築部分のお風呂に繋がってます。

 

 

2階の事務所は窓の間に壁があり(南北に)2室に分かれてます。

 

 

車は6台駐車可能です!

 

 

デイサービスに向いてますが、普通の事務所としても使えますよ~♪

 

 

元は移転前の当社の事務所ですし♪

 

 

吹屋町貸事務所の詳細はこちら!

 

 

 

■□■□■□■□■□■□■□■□■□■□■□■□■□■□■□■□■□■□■□■□■□■□■□■□■□■□■□■□■□■□■□

株式会社フジシマ産業

 

藤林正樹

 

〒640-8112 和歌山市南材木丁二丁目10
TEL:073-436-5800 FAX:073-436-3070
受付時間 9:00~18:00 / 定休日 日曜、祝日、第1・3・5土曜

 

和歌山テナントナビを運営するフジシマ産業の売物件情報収益物件情報
藤林正樹のブログ

 

和歌山テナントナビがあなたに提供する3つのサービス
1.仲介手数料0円
2.新規出店支援最大100万円
3.あなたの希望に応じて最大3億円まで

 

株式会社フジシマ産業運営 不動産売買専門

和歌山で評判の不動産相談センター

 

株式会社フジシマ産業運営 不動産賃貸専門
和歌山テナントナビ
和歌山お部屋探しナビ

 

■□■□■□■□■□■□■□■□■□■□■□■□■□■□■□■□■□■□■□■□■□■□■□■□■□■□■□■□■□■□■□