紀の川市でテナントを探しているあなたに最新テナント情報です。紀の川市打田にあるグリーンプラザ打田 B棟、当社所有のテナントで、建築を予定している物件です。
外観
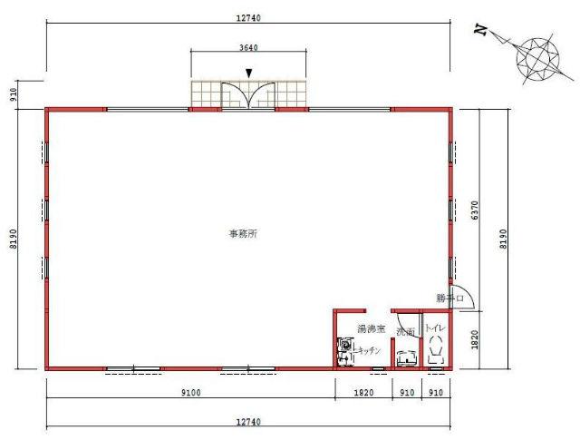
建物平面図
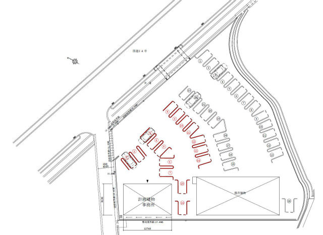
建物配置図(左下の□に×されているのが建築を予定している建物です。)
建築予定場所(既存店舗の西側に建築を予定しおります。)
●面 積 104.34㎡(31.56坪) ※建築予定(相談可)
●賃 料 265,000円(駐車場代を含む)
●保証金 110万円
●礼 金 110万円
当物件は「和歌山テナントナビがあなたに提供する3つのサービス」の仲介手数料0円に対応した新築物件で駐車場も広々16台分確保し、国道24号線沿いですが橋本方面、岩出・和歌山方面、どちらから来てもUターンをせずスムーズに入る事ができるオススメ物件です。
当物件が気になった、あなたにはメール又は郵送にて、資料お送りさせて頂きますのでお気軽にお問い合わせください。
■□■□■□■□■□■□■□■□■□■□■□■□■□■□■□■□■□■□■□■□■□■□■□■□■□■□■□■□■□■□■□
株式会社フジシマ産業
藤林正樹
〒640-8112 和歌山市南材木丁二丁目10
TEL:073-436-5800 FAX:073-436-3070
受付時間 9:00~18:00 / 定休日 日曜、祝日、第1・3・5土曜
和歌山テナントナビを運営するフジシマ産業の売物件情報、収益物件情報
藤林正樹のブログ
和歌山テナントナビがあなたに提供する3つのサービス
1.仲介手数料0円
2.新規出店支援最大100万円
3.あなたの希望に応じて最大3億円まで
株式会社フジシマ産業運営 不動産売買専門
株式会社フジシマ産業運営 不動産賃貸専門
和歌山テナントナビ
和歌山お部屋探しナビ
■□■□■□■□■□■□■□■□■□■□■□■□■□■□■□■□■□■□■□■□■□■□■□■□■□■□■□■□■□■□■□

